Технический паспорт
Характеристики Wilo-DrainLift Box - 50 Гц - 2900 об/мин

Согласно EN 12056-4,6.1 следует соблюдать скорость потока (напорном трубопроводе) в диапазоне от 0,7 до 2,3 м/с.
Указанные значения Qмин. относятся к внутреннему диаметру нормальностенных стальных труб.
| Данные мотора | |
|---|---|
| Подключение к сети | 1~230 V, 50 Hz |
| Номинальный ток IN | 3.6 A |
| Число полюсов | 2 |
| Тип пуска | Прямой |
| Класс изоляции | F |
| Степень защиты | IP 68 |
| Макс. частота включений | 50 1/ч |
| Кабель | |
| Длина соединительного кабеля | 10 м |
| Тип штекера | С защитным контактом |
| Тип соединения кабеля | Неразъемный |
| Допустимая область применения | |
| Режим работы на насос | S3-25% |
| Макс. допустимое давление в напорном трубопроводе p | 1.7 бар |
| Температура перекачиваемой жидкости T | +3 ... +35 В°C |
| Макс. температура перекачиваемой жидкости, кратковременно до 3 мин T | 90 В°C |
| Температура окружающей среды, макс. T | 35 В°C |
| Размеры/вес | |
| Общий объем V | 113 л |
| Объем включения V | 24 л |
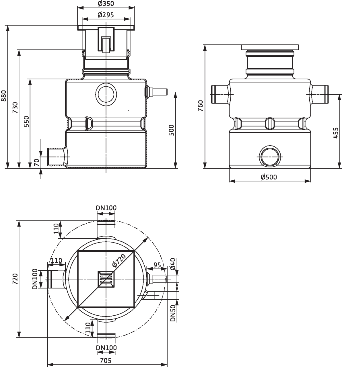
| Габаритные размеры Ширина x Высота x Глубина | 720x880x705 мм |
| Вес, прим. m | 28 кг |
| Подключения | |
| Напорный патрубок | Г?40 |
| Фланцы (по EN 1092-2) PN | PN - |
| Стандарт подключения | DIN 8074 |
| Максимальное рабочее давление pmax | 1.1 бар |
| Приточный трубопровод | DN 100 |
| Удаление воздуха | DN 100 |
| Монтажный материал | |
| Принадлежности для крепления | - |
| Комплект для подсоединения напорного трубопровода | • |
| Резак для вырезания входных отверстий | - |
| Кольцевая ножовка для приточного отверстия | - |
| Уплотнение для приточного трубопровода | - |
| Звукоизолирующий материал | - |
| материал | |
| Корпус электродвигателя | Нержавеющая сталь |
| Корпус насоса | Синтетический материал |
| Рабочее колесо | Синтетический материал |
| Резервуар | Синтетический материал |
| Данные для заказа | |
| Изделие | Wilo |
| Арт.-№ | 2521821 |
| Номер EAN | 4016322705772 |
| Ценовая группа | PG7 |
Размеры и габаритные чертежи
Габаритный чертеж
Einzelpumpe

Характеристики
Характеристики Wilo-DrainLift Box - 50 Гц - 2900 об/мин

Согласно EN 12056-4,6.1 следует соблюдать скорость потока (напорном трубопроводе) в диапазоне от 0,7 до 2,3 м/с.
Указанные значения Qмин. относятся к внутреннему диаметру нормальностенных стальных труб.
Данные для заказа
| Данные для заказа | |
|---|---|
| Тип насоса | Box 32/11 |
| Арт.-№ | 2521821 |
| Номер EAN | 4016322705772 |
| Цвет | черн. |
| Минимальное количество для заказа | 1 |
| Единица минимального кол-ва для заказа | PCE |
| Вес (нетто) kg | 28 |
| Длина (нетто) mm | 705 |
| Ширина (нетто) mm | 720 |
| Высота (нетто) mm | 880 |
| Вес (брутто) kg | 50 |
| Длина (брутто) mm | 1200 |
| Ширина (брутто) mm | 720 |
| Высота (брутто) mm | 1200 |
| Вид упаковки | Европоддон |
| Свойства упаковки | Нет данных |
| Штук на поддон | 2 |
| Количество на один слой | 1 |
Описание изделия
Полный текст
Ready for connection and automatic sewage lifting unit as a single-pump system for the concealed floor installation. A submersible pump in single-phase version with thermal motor monitoring and built-in float switch for the level-dependent control. Collection reservoir made of plastic with two inlet connections. Pressure connection with integrated non-return valve.
Scope of delivery:
| Допустимая область применения | |
|---|---|
| Режим работы на насос | S3-25% |
| Макс. допустимое давление в напорном трубопроводе p | 1.7 бар |
| Температура перекачиваемой жидкости T | +3 ... +35 В°C |
| Макс. температура перекачиваемой жидкости, кратковременно до 3 мин T | 90 В°C |
| Температура окружающей среды, макс. T | 35 В°C |
| Подключения | |
| Напорный патрубок | Г?40 |
| Фланцы (по EN 1092-2) PN | PN - |
| Стандарт подключения | DIN 8074 |
| Максимальное рабочее давление pmax | 1.1 бар |
| Приточный трубопровод | DN 100 |
| Удаление воздуха | DN 100 |
| Данные мотора | |
| Подключение к сети | 1~230 V, 50 Hz |
| Потребляемая мощность P1 | 0,8 кВт |
| Номинальный ток IN | 3,6 A |
| Номинальная частота вращения n | 2900 об/мин |
| Число полюсов | 2 |
| Тип пуска | Прямой |
| Класс изоляции | F |
| Степень защиты | IP 68 |
| Макс. частота включений на насос | 50 1/ч |
| Кабель | |
| Длина кабеля до прибора управления/штекера | –/10 M |
| Тип штекера | С защитным контактом |
| Тип соединения кабеля | Неразъемный |
| материал | |
| Корпус электродвигателя | 1.4301 |
| Вал насоса | 1.4404 [AISI316L] |
| Скользящее торцевое уплотнение | графит/керамика |
| Корпус насоса | PP-GF30 |
| Рабочее колесо | PP-GF30 |
| Материал резервуара | PE |
| Размеры/вес | |
| Общий объем V | 113 л |
| Мин. уровень Выкл. | 140 мм |
| Мин. уровень Вкл. | 295 мм |
| Габаритные размеры Ширина x Высота x Глубина | 720x880x705 мм |
| Диагональные размеры | 720 мм |
| Вес, прим. m | 28 кг |
| Данные для заказа | |
| Арт.-№ | 2521821 |
| Номер EAN | 4016322705772 |
| Ценовая группа | PG7 |
| Изделие | Wilo |
Купить DrainLift Box 32/11 в регионе Ярославль.