Москва: +7 (495)
6696898
Санкт-Петербург: +7 (812)
3097686
Ярославль: +7 (4852)
644647
IL 250/395-110/4
Производитель — Wilo
Оценка (средняя 5)
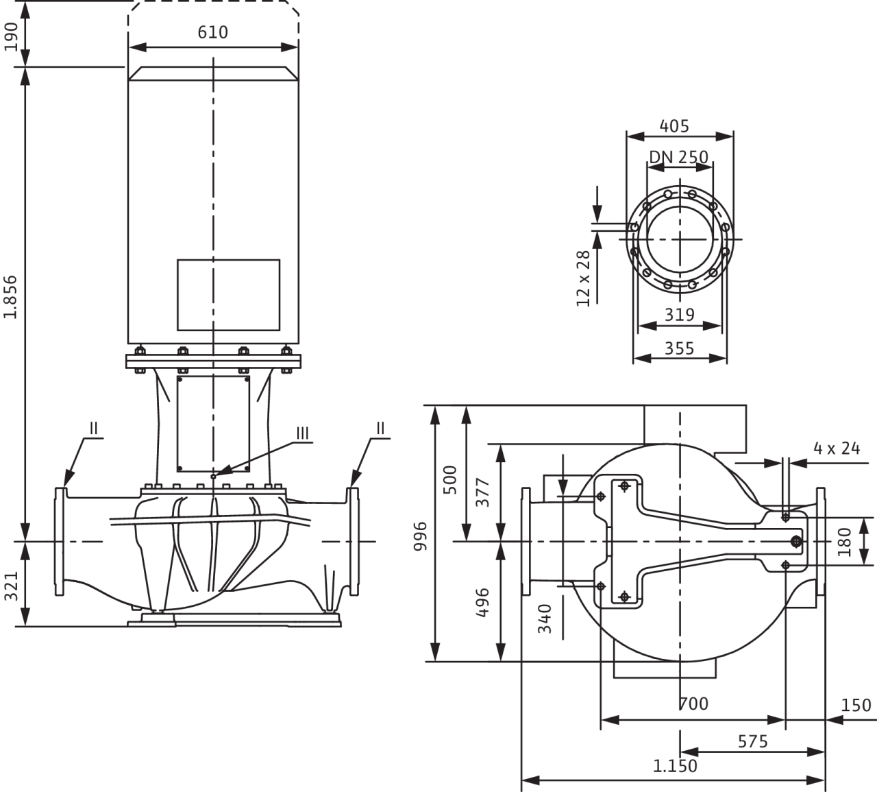
Технический паспорт Характеристики 4-полюсный, 50 Гц Габаритный чертеж II отверстие для измерения давления R 1 / 8 ; III удаление воздуха R 1 / 8 Схема подключения Δ: Схема соединения – треугольник Y: Схема соединения – звезда Защитный...
Запросить консультацию
Заказать продукцию
Характеристики
Характеристики — IL 250/395-110/4

Технический паспорт

Характеристики

4-полюсный, 50 Гц

Габаритный чертеж

II отверстие для измерения давления R1/8; III удаление воздуха R1/8

Схема подключения

Δ: Схема соединения – треугольник

Y: Схема соединения – звезда

Защитный выключатель электродвигателя должен предоставляться заказчиком. Контролировать направление вращения! Для изменения направления вращения поменять местами любые две фазы.

P2 ≤ 3 кВт3~400 В Y
3~230 В Δ
P2 ≥ 4 кВт3~690 В Y
3~400 В Δ

После удаления перемычек возможен запуск Y-Δ.

Допустимая перекачиваемая среда (другие среды по запросу)
Вода систем отопления (согласно VDI 2035)
Водогликолевая смесь (при доле гликоля 20-40 об. % и температуре перекачиваемой среды ≤ 40 В°C)
Охлаждающая и холодная вода
Масляный теплоносительСпециальное исполнение за дополнительную плату
Допустимая область применения
Стандартное исполнение для рабочего давления pмакс16 бар (до +140 В°C) бар
Диапазон температур при макс. температуре окружающей среды +40 В°C-20...+140 В°C (в зависимости от перекачиваемой среды)
Температура окружающей среды, макс.40 В°C
Установка в закрытых помещениях
Установка в открытых помещенияхСпециальное исполнение за дополнительную плату
Подсоединения к трубопроводу
Номинальный внутренний диаметр фланцаDN 250
Фланцы (по EN 1092-2)PN 16
Фланец с отверстием для манометраR 1/8
Материалы
Корпус насосаEN-GJL-250
Промежуточный корпусEN-GJL-250
Рабочее колесоEN-GJL-200
Рабочее колесо (специальное исполнение)G-CuSn10
Вал насоса1.4122
Скользящее торцевое уплотнениеAQEGG
другие скользящие торцевые уплотненияпо запросу
Электроподключение
Подключение к сети3~400 В, 50 Гц
Номинальная частота вращения n1450 об/мин
Минимальный индекс эффективности (MEI)
Минимальный индекс эффективности (MEI)≥ 0.40
Насос с макс. диаметром рабочего колеса для определения MEIIL250/445-160/4
Мотор/электроника
Встроенная полная защита мотораСпециальное исполнение с термодатчиками за дополнительную плату
Степень защитыIP 55
Класс изоляцииF
Номинальный ток (прим.) IN 3~400 В193 A
Класс эффективности мотораIE3
КПД электродвигателя ηm 50% m 75% m 100% 95,5/95,8/95,4 %
Коэффициент мощности cos φ0.86
Номинальная мощность электродвигателя P2110 кВт
Обмотка мотора мощностью до 3 кВт230 В Δ/400 В Y, 50 Гц
Обмотка мотора мощностью от 4 кВт400 V Δ/690 V Y, 50 Hz
Варианты монтажа
Монтаж на трубопроводе (при мощности мотора до ≤ 15 кВт)
Монтаж на консолях
Данные для заказа
Вес, прим. m1648 кг
ИзделиеWilo
ТипCronoLine-IL 250/395-110/4
Арт.-№2151790

Размеры и габаритные чертежи

Габаритный чертеж

II отверстие для измерения давления R1/8; III удаление воздуха R1/8

Характеристики

Характеристики

4-полюсный, 50 Гц

Схема подключения

Схема подключения

Δ: Схема соединения – треугольник

Y: Схема соединения – звезда

Защитный выключатель электродвигателя должен предоставляться заказчиком. Контролировать направление вращения! Для изменения направления вращения поменять местами любые две фазы.

P2 ≤ 3 кВт3~400 В Y
3~230 В Δ
P2 ≥ 4 кВт3~690 В Y
3~400 В Δ

После удаления перемычек возможен запуск Y-Δ.

Данные для заказа

Данные для заказа
ИзделиеWilo
ТипCronoLine-IL 250/395-110/4
Арт.-№2151790
Номер EAN4048482474472
Цветзеленый
Минимальное количество для заказа1
Единица минимального кол-ва для заказаPCE
Вес (нетто) kg1648
Длина (нетто) mm2065
Ширина (нетто) mm931
Высота (нетто) mm1150
Вес (брутто) kg1762.6
Длина (брутто) mm2400
Ширина (брутто) mm1300
Высота (брутто) mm1383
Вид упаковкиЕвроподдон
Свойства упаковкиТранспортировочная упаковка
Штук на поддон1
Количество на один слой1

Описание изделия

Полный текст

Одноступенчатый центробежный насос с сухим ротором линейного типа, предназначенный для установки в трубах или на фундаменте. Консоль предоставляется за отдельную плату. Блочное исполнение с низким уровнем шума и вибрации с промежуточным корпусом и неподвижно присоединенным унифицированным (стандартным) электродвигателем с фланцевым креплением. С не зависящим от направления вращения скользящим торцовым уплотнением в кожухе с принудительным охлаждением и снижающим кавитацию рабочим колесом. Фланцы имеют отверстия R 1/8 для измерения давления.

На корпус насоса и промежуточный корпус нанесено катафорезное покрытие.

  • серийная монтажная плита для установки на фундаменте;
  • серийная установка Back-Pull-Out (картриджное скользящее торцевое уплотнение) для замены скользящего торцового уплотнения без демонтажа насоса или электродвигателя;
  • серийный электродвигатель с 3 термодатчиками;
  • серийная система заполнения смазкой подшипников электродвигателя.
Материалы
Корпус насосаEN-GJL-250
Промежуточный корпусEN-GJL-250
Рабочее колесоEN-GJL-200
Вал насоса1.4122
Скользящее торцевое уплотнениеAQEGG
Допустимая область применения
Стандартное исполнение для рабочего давления pмакс16 бар (до +140 В°C) бар
Диапазон температур при макс. температуре окружающей среды +40 В°C-20...+140 В°C (в зависимости от перекачиваемой среды)
Температура окружающей среды, макс.40 В°C
Подсоединения к трубопроводу
Номинальный внутренний диаметр фланцаDN 250
Фланцы (по EN 1092-2)PN 16
Фланец с отверстием для манометраR 1/8
Габаритная длина l01150 мм
Минимальный индекс эффективности (MEI)
Минимальный индекс эффективности (MEI)≥ 0.40
Насос с макс. диаметром рабочего колеса для определения MEIIL250/445-160/4
Мотор/электроника
Степень защитыIP 55
Класс изоляцииF
Номинальный ток (прим.) IN 3~400 В193 A
Класс эффективности мотораIE3
КПД электродвигателя ηm 50% m 75% m 100% 95,5/95,8/95,4 %
Коэффициент мощности cos φ0.86
Номинальная мощность электродвигателя P2110 кВт
Номинальная частота вращения n1,450 об/мин
Вес
Вес, прим. m1648 кг
Данные для заказа
Арт.-№2151790
ТипCronoLine-IL 250/395-110/4
ИзделиеWilo

Купить IL 250/395-110/4 в регионе Ярославль.

Новости и акции компании
© 2000-2026 Все права на разработку принадлежат компании Глобал Энерго Групп. Копирование допускается только с разрешения правообладателей сайта. Политика конфиденциальности. Наш интернет ресурс носит исключительно информационный характер и не является публичной офертой, определяемой положениями Статьи 437 (2) ГК РФ. Для получения точной информации о наличии и стоимости услуг, пожалуйста, обращайтесь к консультантам и менеджерам нашей компании.. Политика конфиденциальности
Москва: +7 (495)
6696898
Санкт-Петербург: +7 (812)
3097686
Ярославль: +7 (4852)
644647