Технический паспорт

Аналогично рисунку
| Допустимая перекачиваемая среда (другие среды по запросу) | |
|---|---|
| Вода систем отопления (согласно VDI 2035) | • |
| Водогликолевая смесь (при доле гликоля 20-40 об. % и температуре перекачиваемой среды ≤ 40 В°C) | (начиная с доли гликоля 10 об. %: требуется проверка производительности) |
| Охлаждающая и холодная вода | • |
| Допустимая область применения | |
| Температура среды - скользящее торцевое уплотнение T | -8...+120 В°C |
| Температура перекачиваемых жидкостей - сальниковое уплотнение T | -8...+105 В°C |
| Подсоединения к трубопроводу | |
| Номинальный внутренний диаметр DN1 | 100 |
| Номинальный внутренний диаметр DN2 | 80 |
| Материалы | |
| Корпус насоса | EN-GJL-250 |
| Корпус насоса (специальное исполнение) | Ni-resist cast iron GGL-NiCr202/X6CrNiMo1810 |
| Рабочее колесо | G-CuSn10 |
| Рабочее колесо (специальное исполнение) | |
| Разделительные кольца | G-CuSN10 |
| Вал насоса | X12cr13 |
| Вал насоса (специальное исполнение) | X5CrNiMo1810 |
| Скользящее торцевое уплотнение | Carbon/silicon carbide/EPDM (E1) |
| другие скользящие торцевые уплотнения | Сальниковое уплотнение |
| Мотор/электроника | |
| Стандартный электродвигатель IEC IE2 | • |
| Степень защиты | IP 55 |
| Класс изоляции | F |
| Термодатчик | • |
| Необходимо дополнительное реле электродвигателя | для установки предоставляется заказчиком |
| Номинальный ток 3~400 В, 50 Гц IN | 28.7 A |
| Номинальная мощность электродвигателя P2 | 15 кВт |
| Число полюсов электродвигателя | 4 |
| Типоразмер | 160L - |
| Регулирование частоты вращения | Приборы управления Wilo, внешний частотный преобразователь (за отдельную плату) |
| КПД мотора ηm 50% | 90.6 % |
| КПД мотора ηm 75% | 91 % |
| КПД мотора ηm 100% | 91 % |
| Коэффициент мощности cos φ 50% | 0.66 |
| Коэффициент мощности cos φ 75% | 0.76 |
| Коэффициент мощности cos φ 100% | 0.83 |
| Данные для заказа | |
| Изделие | Wilo |
| Тип | SCP 80/380DS |
| Вес, прим. m | 482.2 кг |
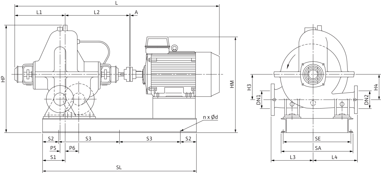
Размеры и габаритные чертежи
Габаритный чертеж

Аналогично рисунку
Номинальный внутренний диаметр DN2
80Номинальный внутренний диаметр DN1
100Размеры A
4 ммРазмеры H1
340 ммРазмеры H2
250 ммРазмеры H3
192 ммРазмеры H4
208 ммРазмеры S1
50 ммРазмеры S2
72 ммРазмеры S3
7 ммРазмеры S4
8 ммРазмеры S5
28 ммРазмеры SA
540 ммРазмеры SE
490 ммРазмеры SL
1290 ммРазмеры L1
386.5 ммРазмеры L2
458.5 ммРазмеры L3
335 ммРазмеры L4
242 ммРазмеры L
1605Размеры HM
707Размеры HP
693Размеры n x Г? d
4x24 Шт. x ммХарактеристики

Описание изделия
Полный текст
Одно- или двухступенчатый нормальновсасывающий центробежный насос с аксиально разделенным корпусом насоса. Корпус насоса спиральной формы, состоит из двух литых частей, соединенных болтами вдоль оси насоса.
Герметичность между фланцами обеих частей корпуса насоса обеспечивается с помощью бумажной прокладки.
Поставка осуществляется по выбору
Применение
К основным областям применения насосов двустороннего входа относятся водоснабжение, водооборот, обратное нагнетание воды, брызгальные бассейны-охладители, кондиционирование, водоподготовка, системы пожаротушения, капельное орошение, пожаротушение и т. д.
Особенности/преимущества продукции
| Материалы | |
|---|---|
| Корпус насоса | EN-GJL-250 |
| Рабочее колесо | G-CuSn10 |
| Вал насоса | X12cr13 |
| Скользящее торцевое уплотнение | Carbon/silicon carbide/EPDM (E1) |
| Допустимая область применения | |
| Температура окружающей среды, макс. | 40 В°C |
| Подсоединения к трубопроводу | |
| Номинальный внутренний диаметр фланца (на стороне всасывания) | DN 100 |
| Номинальный внутренний диаметр фланца (с напорной стороны) | DN 80 |
| Мотор/электроника | |
| Motor Efficiency Class | IE3 |
| Степень защиты | IP 55 |
| Класс изоляции | F |
| Типоразмер | 160L - |
| Число полюсов | 4 |
| КПД мотора ηm 100% | 91 % |
| КПД мотора ηm 75% | 91 % |
| КПД мотора ηm 50% | 90.6 % |
| Вес | |
| Вес, прим. m | 482.2 кг |
| Данные для заказа | |
| Тип | SCP 80/380DS |
| Изделие | Wilo |
Купить SCP 80/380DS в регионе Ярославль.